5款一层带院子户型农村别墅设计图,实用漂亮!
5款一层带院子户型农村别墅设计图,实用漂亮!
难忘的不是童年,是童年里老家的院子。特别是在城里住着鸽子房,这时候就更像老家的院子了。一天工作的疲惫感,回到家也感觉不到一点温馨,陌生的邻居,一年到头说不上一句话。现在也只能先努力赚钱了,将来回农村建一栋带院子的小别墅,那我肯定会在院子旁种满各种月季,还要种上些果树,那一定会很惬意浪漫!
收集了几款一层带院子别墅户型,将来就参考着建!
01

开间20米,进深12.6米,占地256平方米,建筑面积256平方米
砖混结构 建筑高度6.6米

欧式风格设计,造型简约大方,外观配色和谐,院子功能分区合理,非常适合农村养老别墅。


一层:堂屋、客厅、餐厅、厨房、2卧室(带独卫)、2次卧、茶室/办公、储藏间、家政间、卫生间
室内功能设计丰富,共有4间卧室,其中南面两间还带有独卫,生活上更方便;入户就是传统的堂屋,符合农村生活习惯;还设有茶室、家政间,非常实用!
02

开间10.7米,进深5.6米,建筑面积59.92平,主体造价7万
60平左右的农村小别墅,新中式风格,非常适合宅基地小的户主。

一层:客厅、2间卧室、厨房、卫生间
2居室一层自建房,给父母养老正合适。
03

五开间一层农村别墅设计,开间20米,进深9.5米,砖混结构,占地190平,建筑总高度6.3米

一层:客厅、茶室、餐厅、厨房、主卧(带衣帽间)、4间次卧、书房、卫生间
设有5间卧室,一家五六口人居住没问题;还设有书房、茶室,休闲工作不耽误。
04

面宽17米,进深10.13米,独立餐厨房偏房以及院子内设有独立的卫生间、洗衣房户型设计,很符合传统农村住宅格局。

主屋:客厅、书房、餐厅、厨房、卧室(带衣帽间)、2卧室、卫生间
偏房:厨房、客餐厅、公共卫生间、洗衣房
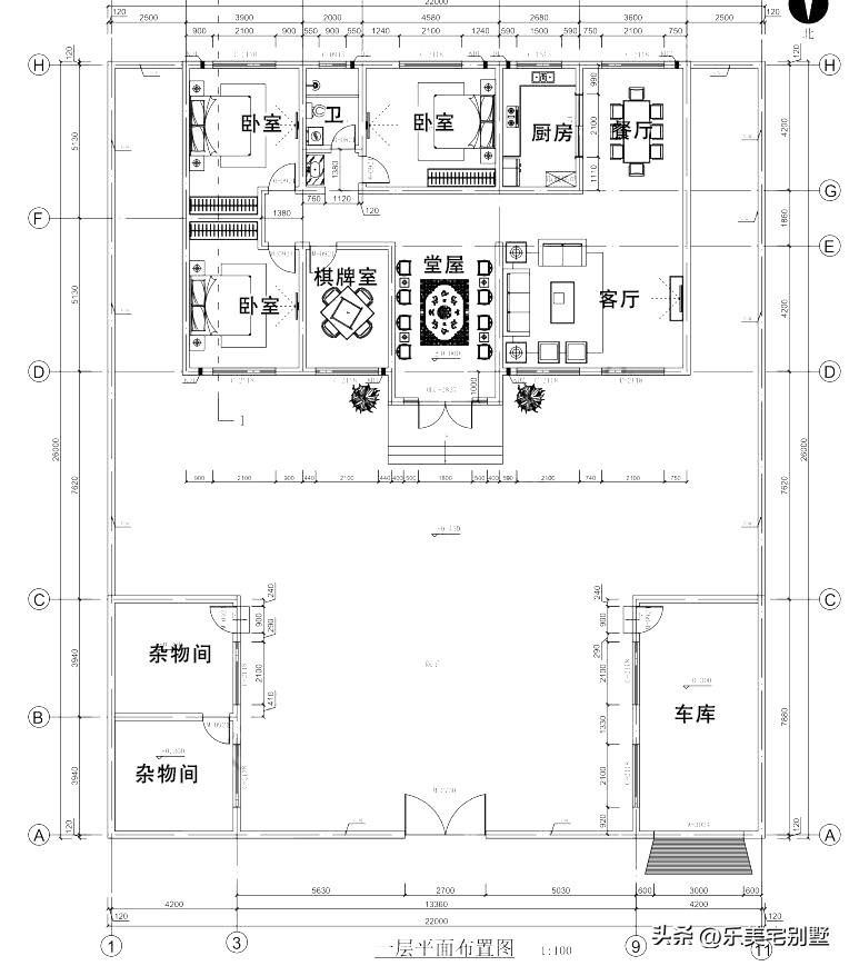
05

主体开间17米,进深10.5米;院子开间22米,进深26米。

一层:堂屋、棋牌室、客厅、餐厅、厨房、3卧室、卫生间、车库、2杂物间
院内右侧设有车库,防雨防晒,爱车得到保护;左侧有两个杂物间,用于存放农用工具和粮食。
你向往带有院子的农村生活吗?